top of page
Create Your First Project
Start adding your projects to your portfolio. Click on "Manage Projects" to get started
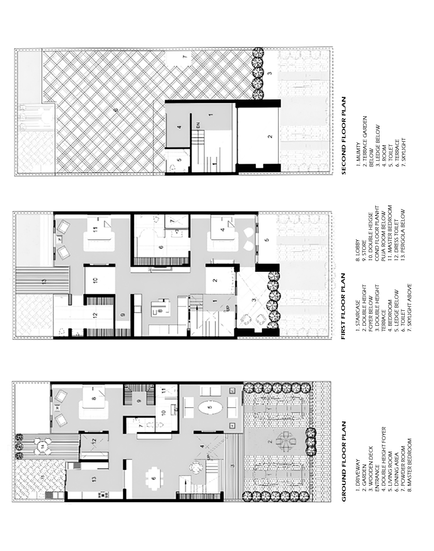
SKY BOX HOUSE
Location
Panchkula, India
Project type
Residential
Archdaily
Architects and Interiors
Perched on a modest 240 sq. meters rectangular plot in the Himalayan foothills, the Sky Box House is an example of architectural ingenuity. Designed for a nuclear family with diverse professional backgrounds and distinct tastes, this home weaves together individual preferences while navigating tight time and budget constraints. Rooted in the principles of Vastu and inspired by Frank Lloyd Wright’s belief that a building should offer shelter, refuge, and privacy, the Sky Box House emerges as a tranquil haven that blends functionality with elegance.
bottom of page




































